Hangzhou Giant Lift Co., Ltd atá suite in aice leis an gceann scríbe turasóireachta taibhseach West Lake --- Hangzhou, cathair "nuálaíocht, beogacht, comhoibriú agus caoinfhulaingt". uirlisí hiodrálacha uirlisí tógála tógála agus uirlisí tógála cumhachta Tosaíonn ár stair ag 1999 mar roinn díolacháin agus tar éis blianta fada d'fhorbairt tá ár ngnólachtaí caite ag níos mó ná 50 tír ar chúig mhór-roinn oibriú agus athchóirithe mar Giant Lift Co., Ltd le haghaidh forbairt gnó níos fearr.
- W Rópa ire: Téad sreang seasta ardfheidhmíochta
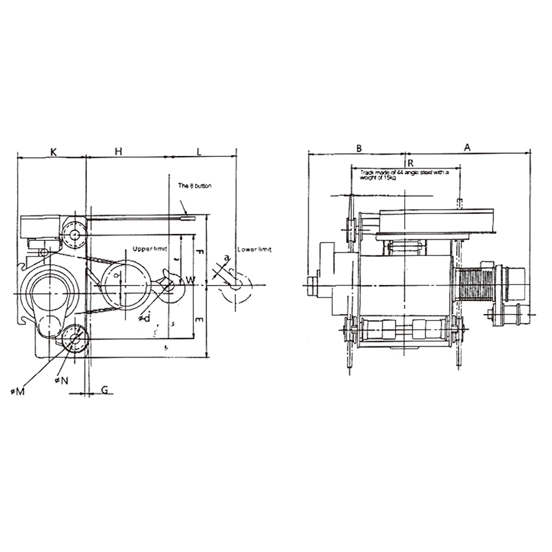
- Mótar: Tá meicníocht rothlach fearas helical seafta seasta trí chéim, fearas agus seafta fearas déanta as cruach cóimhiotail teaschóireáilte, comhlacht bosca, tá clúdach bosca déanta as iarann teilgthe ardchaighdeáin, tá an tionól dian, tá séalaithe go maith. Tá laghdaitheoir isteach i gcomhpháirt, luchtú agus díluchtú an-áisiúil.
- Coscán leictreamaighnéadach : Glacadh le coscán leictreamaighnéadach atá sábháilte agus
- Séalaithe: Feidhmíocht séalaithe IP55 an mhótair agus an ghiarbhosca. Inoiriúnaithe le timpeallacht oibre dian
- Rátáilte M5: Is féidir leis oibriú go leanúnach faoin ualach rátáilte.
- Torann íseal: Torann íseal ag tosú, ag obair go seasta, ag oibriú go híogair. Tugann Tiomáint ar bharr an raoin méadú ar Double-Track níos mó cobhsaíochta, agus is lú an t-uafás don lasta.
- Paraiméadar Teicniúil: Acmhainn Ualach: 3-10 tonna
- Luas Ardaithe: 11m/nim
- Luas Tiomána: 21m/nóim
- Meáchan comhlán: 480-1550KG
- O rogha: Cuir tiontaire minicíochta leis chun luas a choigeartú




.jpg)
-1.jpg)













